Ausstellungsarchitektur für die Hamburger Börse,
1996
            
            
            
            
            
            
            
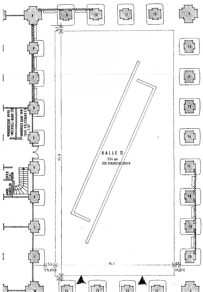
            In den Saal der Börse wird ein innerer Aufbau gesetzt mit
der Absicht, diesen Aufbau als besondere, gleichsam innere Architektur wirken
zu lassen. Diese innere Architektur wird aus Fertigteilen aufgestellt, also
nicht extra gefertigt. Wände aus Schalungsplatten, wie man sie im Betonbau
verwendet, werden in einer Diagonale aufgestellt. Der Vorteil der Diagonale
liegt darin, daß verschiedene Abstände gegeben sind, also Bilder je nach Bedarf
aufgehängt und aus verschiedenen Entfernungen gesehen werden können. Zusätzlich
entstehen in einigen, ebenfalls mit Schalungswänden ausgestatteten Durchgängen
intimere Nischen.